
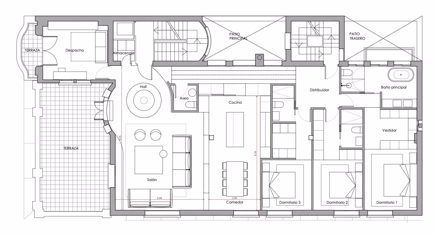
Invierte en una propiedad exclusiva de 229m2 en el prestigioso barrio de Recoletos
Ofrecemos la opción de diseñar cada detalle de la vivienda sin reformar según tus gustos y adaptándolo a tu estilo de vida.
Garantizamos un proceso transparente, con presupuesto cerrado y entrega asegurada, sin retrasos ni imprevistos.
Asesoramos en cada paso, facilitando la compra y gestión de la propiedad en España.
Nos encargamos de todo el proceso, adquiriendo la mejor propiedad y gestionando cada fase, desde la firma hasta la reforma, para garantizar una experiencia sin complicaciones.


SO Arquitectura es un estudio “boutique” de arquitectura e interiorismo con experiencia en el ámbito nacional e internacional.
“Apostamos por espacios conscientes, sostenibles, cálidos y llenos de luz, que invitan a la adopción de un ritmo de vida más pausado.”

Propiedades valoradas con IA
Años de experiencia Prime
en ventas de propiedades Prime
Propiedades prime compradas y vendidas
Análisis detallado de su caso y advisoring
Planificación del proceso de compra para agilizar el proceso
Acceso y visita exclusiva a las propiedad junto con nuestros arquitectos
Reserva y gestión de trámites
Ajustes finales del proyecto para garantizar la ultra personalización
Escritura e inicio de obra con presupuesto cerrado y fecha de entrega garantizada.




