
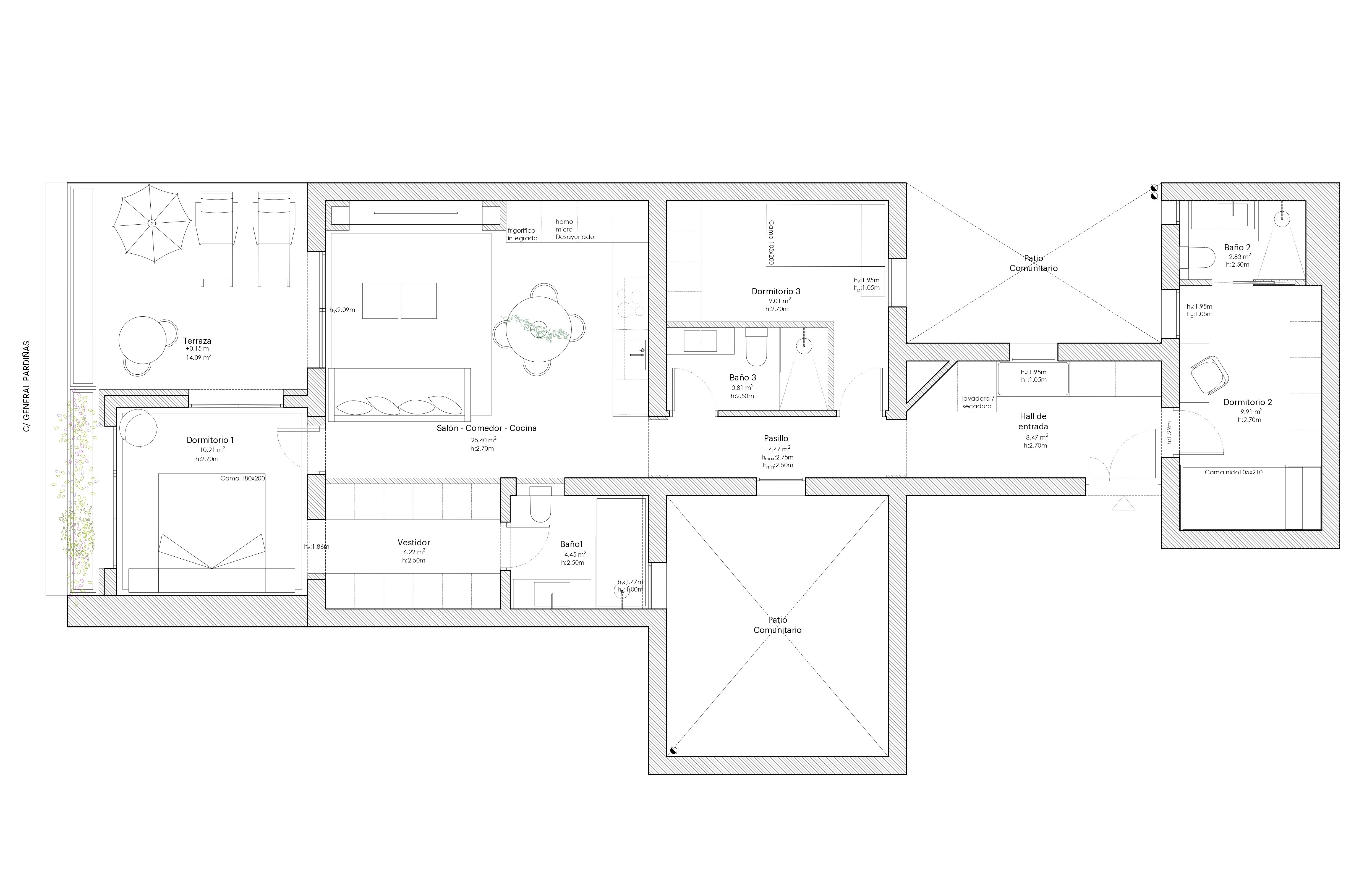
Invierte en una propiedad exclusiva de 139m2 en el prestigioso barrio de Goya
Ofrecemos la opción de diseñar cada detalle de la vivienda sin reformar según tus gustos y adaptándolo a tu estilo de vida.
Garantizamos un proceso transparente, con presupuesto cerrado y entrega asegurada, sin retrasos ni imprevistos.
Asesoramos en cada paso, facilitando la compra y gestión de la propiedad en España.
Nos encargamos de todo el proceso, adquiriendo la mejor propiedad y gestionando cada fase, desde la firma hasta la reforma, para garantizar una experiencia sin complicaciones.


Forma Prima desafía la uniformidad arquitectónica, explorando el equilibrio entre contrastes como luz y sombra, curvas y líneas ortogonales, o rusticidad y pulcritud. A través de esta tensión controlada, crean espacios que estimulan los sentidos y generan experiencias arquitectónicas memorables, donde diversidad y cohesión se fusionan en perfecta armonía.

Propiedades valoradas con IA
Años de experiencia Prime
en ventas de propiedades Prime
Propiedades prime compradas y vendidas
Análisis detallado de su caso y advisoring
Planificación del proceso de compra para agilizar el proceso
Acceso y visita exclusiva a las propiedad junto con nuestros arquitectos
Reserva y gestión de trámites
Ajustes finales del proyecto para garantizar la ultra personalización
Escritura e inicio de obra con presupuesto cerrado y fecha de entrega garantizada.




